Tư vấn thiết kế xây nhà 2 tầng!
Vệc lựa chọn và xây nhà 2 tầng cho mình quả là một việc không hề dễ dàng. Nó phụ thuộc quá nhiều yếu tố khách quan lẫn chủ quan mà chúng ta không kiểm soát hết được như: kinh phí xây nhà, thời gian xây, việc làm, chỗ ở, dịch vụ xây dựng.......
Với kinh nghiệm 20 năm trong nghề xây dựng, công ty chúng tôi đã hoàn thành khá nhiều công trình, nhà ở. Tư vấn hàng trăm khách hàng chưa nắm rõ về vấn đề xây dựng.
Các loại nhà ở mà công ty chúng tôi đã từng thi công như: nhà tiền chế, nhà thép tiền chế, nhà cấp 1, nhà cấp 2, nhà cấp 3, xây nhà cấp 4, nhà phố, nhà 2 tầng, nhà 3 tầng.....chúng tôi xây dựng đủ loại nhà ở mà tùy theo diện tích khách yêu cầu chúng tôi sẽ tư vấn chính xác những loại nhà tiềm năng cho khách hàng.
Một số câu hỏi khi xây nhà 2 tầng:
Gia đình tôi có lô đất 3,6m x 11 m tại khu vực nội thành, hai bên đều đã có nhà xây kiên cố. Chúng tôi muốn xây dựng một ngôi nhà có hình dáng kiến trúc hiện đại trên với mức kinh phí khoảng 400 triệu.
Yêu cầu:
- Xây 2,5 tầng
- Tầng 1có sân nhỏ phía trước nhà. phòng khách + Bếp+ WC
- Tầng 2 để 2 phòng ngủ + WC.
- Một nửa tầng 3 sân phơi và 1 phòng ngủ - Có giếng trời với tiểu cảnh thì tốt
Rất mong KTS tư vấn cho tôi phương án thiết kế và xây dựng hợp lý nhất. Xin cảm ơn.
Đối với câu hỏi xây nhà 2,5 tầng này KTS chúng tôi có câu trả lời tư vấn như sau:
Chào bạn! Trước mắt, chúng tôi khẳng định rằng bạn hoàn toàn có thể xây dựng một căn nhà ưng ý theo quy mô diện tích và số tầng cao mà bạn đề ra chỉ với kinh phí 400 triệu theo thiết kế gợi ý của chúng tôi.
Với yêu cầu đặt ra khá nhiều cho một ngôi nhà có quy mô diện tích đất khiêm tốn. Nhóm kiến trúc sư sau khi nghiên cứu đã chọn giải pháp thiết kế nhà ở lêch tầng, từ đó, tận dụng tối đa diện tích đất, thiết kế cho bạn một ngôi nhà hoàn toàn ưng ý.
Tầng 1 được thiết kế theo yêu cầu của bạn đọc bao gồm có sân nhỏ phía trước nhà, phòng khách, phòng bếp, nhà vệ sinh chung và cầu thang.
Nhà vệ sinh được đặt dưới gầm cầu thang để tiết kiệm tối đa diện tích. Chức năng thang và nhà vệ sinh ngăn đôi không gian nhà thành hai khu phòng khách ở phía trước và phòng bếp + ăn ở phía sau.

Tầng 2 bắt đầu bước chuyển biến một hình thức thang kiểu khác với tầng một để tạo ra kiểu nhà ở lệch tầng, các vế thang đang theo hướng cắt ngang ngôi nhà giờ chuyển thành chạy dọc theo nhà. Từ đó, tạo ra thêm không gian vệ sinh chung của, giếng trời nhỏ trong cùng một bước cột.
Phòng ngủ lớn ở phía trước với ban công nhô ra ngoài, phòng ngủ nhỏ phía sau có cửa sổ mở vào phần giếng trời và mở ra phần chéo đằng sau nhà, tạo sự thông thoáng cho từng phòng.

Tầng 3 là phòng giặt, giếng trời, phòng ngủ phía sau và sân phơi ở phía trước.
Ba điểm đặc biệt xuyên suốt trong thiết kế ở ngôi nhà của bạn, đó chính là cách xử lý thang cho không gian thay đổi sinh động, phần giếng trời tạo sự thông thoáng cho toàn bộ nhà và đưa hộp kỹ thuật ra ngoài để mở rộng không gian vệ sinh.

Mong rằng, thiết kế sơ bộ của chúng tôi có thể đáp ứng được mong muốn của bạn cho một ngôi nhà ưng ý.
Câu hỏi tiếp theo của một khách hàng ở Bình Dương:
Mành đất của tôi có kích thước 4mx18m, tôi muốn xây nhà hai tầng, lợp mái tôn. Trước và sau nhà chừa một khoảng sân nhỏ. Công năng các tầng bố trí như sau:
Tầng một có phòng khách, phòng bếp có giếng trời nhỏ lắp kính, phòng ăn, toilet. Tầng hai bố trí hai phòng ngủ có toilet bên trong.
Rất mong được KTS tư vấn thiết kế nhà thoáng mát và đẹp. Tôi xin cảm ơn!
Trả lời:
Kích thước mảnh đất của anh/chị rất lý tưởng, vuông vức rất đẹp và phù hợp với nhu cầu về không gian ở của anh/chị. Sau đây là phần tư vấn của chúng tôi.
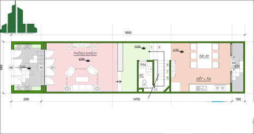
Tầng trệt, phần sân trước chúng tôi dành 2m3 và 1m sân sau nhà, tạo sự thông thoáng cho căn nhà. Với bố trí đơn giản cầu thang nằm giữa phía trước là phòng khách phía sau là bếp với bàn ăn, tolet nhỏ năm dưới dạ cầu thang, nhưng chúng tôi chia không gian và ngăn cách bằng cao độ nền (bếp cao hơn phòng khách). Anh/chị vui lòng xem hình minh họa phía dưới.

Tầng lầu 1, gồm 2 phòng ngủ như mong muốn của anh chị, phía trước la phòng ngủ chính. Không gian chừa làm sân trước và sau được thiết kế làm ban-con cho 2 phòng ngủ.

Mặt bằng mái phía dưới thể hiện rõ mái tôn và vị trí mái lấy sáng.

Anh chị xem phần mặt cắt để nắm rõ y tưởng thiết kế bố trí các phòng bên trong ngôi nhà.

Phối cảnh tham khảo:

Có rất nhiều câu hỏi về việc xây nhà 2 tầng. Nếu quý khách có nhu cầu tư vấn hay xây nhà 2 tầng thì liên hệ với công ty chúng tôi nhé!
Tin tức liên quan
- Lan can Inox
- Nhận lắp đặt lồng sắt giá rẻ. Lồng sắt mẫu 2016
- Đơn vị chuyên lắp đặt cửa nhôm kính giá rẻ
- Nhận lắp đặt cổng sắt các loại giá rẻ tại tphcm
- Nhận xây dựng và thiết kế nhà xưởng nhà kho
- Nhận thi công lắp đặt cửa kính cường lực giá rẻ
- Báo giá làm cửa sắt sơn tĩnh điện giá rẻ
- Lan can kính cường lực
- Làm sao để xây nhà cấp 4 100 triệu ?
- Cách xây nhà cấp 4 đẹp rẻ tiền nhất mà bạn chưa biết
Danh Mục Sản Phẩm
Tin tức nổi bật
THI CÔNG CHỐT GÁC BẢO VỆ - NHÀ BẢO ...
Xây dựng nhà ở - nhà dân dụng chuyê...Làm bảng hiệu Alu quảng cáo chữ nổi...
Xây dựng nhà nghỉ - khách sạn mini ...
Thi công làm hàng rào sắt - gỗ các ...
Xin giấy phép xây dựng nhà ở - nhà ...
Chống dột mái tôn cho nhà xưởng tại...
Nhà để xe – thi công lắp đặt khung ...
Chống dột mái tôn nhà xưởng nhà kho...
Thi công xây dựng nhà ở dân dụng vớ...